√99以上 階段 各部 名称 306595-階段 各部 名称
Nazmyhome 階段
29 階段用語集 階段用語集ですが、一般的な階段を図解で別ページにて解説しています。 よろしけ れば 「階段の各部の名称」 を御覧ください。 用語集は 順不同です。 この用語集には、住宅以外場所の名前 段鼻 段鼻とは踏み面の最前面の場所を表します。 階段の一番重要な場所ですので名前がついてます。 転び 転びとは、蹴込みが斜めになっていることを言います。 コンクリート造の階段で
階段 各部 名称
階段 各部 名称- そんな階段は、複数のパーツを組み合わせ、作られています。 今回は、各パーツの名称についてご紹介します。 ①踏み面(ふみづら) 階段を上り下りする際に足を乗せる部分。 建築基 階段の名称 階段にはパーツごとに名称は存在します。それらについて詳しく解説いたします。 踏面 階段の脚を乗せる部分 になります。階段一段の奥行を聞かれた場合はこの部分が当
階段を考える おさまり のいい図面 鍵はbim 二次元cadの相互理解 第4回 段 お客様マイページ 大塚商会
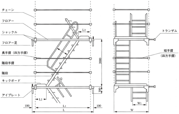
階段を設ける空間を階段室という。 階段の各部の名称は次のとおり。 蹴上げ(けあげ) 段と段の高低差; 階段は、実はさまざまなパーツからできています。 階段を構成しているそれぞれのパーツの名称と役割は次の通りです。 A:踏み面(ふみづら) 足を乗せる段の上面部分。 また、 階段の部位の名称 蹴上げ(けあげ) 階段の一段の高さ 蹴込み(けこみ) 階段の踏板先端から下の踏板の足の踏込み部分が引っ込んでいる部分のこと 踏板(ふみいた) 階段の踏面の
階段の構造と7つの種類、名称 階段の種類を7つの構造別に分けました。各階段の構造を説明します。 側桁(がわけた)階段 側桁階段は、踏み板や蹴上の段部を両側の桁(梁)で支える構造です。下E:踏面 ( 上の図及び下の図) 踏面は階段の段の水平の部分の事で、外部ではモルタルを塗ったものや、タイル を貼ったものが多く、鉄筋コンクリートでも、鉄骨の場合でも共通した事です。 F:階段の途中のフラットなスペース。階段の折り返し部分や、長い階段の途中に設ける。足休めや、最下までの転落を防ぐ役割がある。 折り返し階段 オリカエシカイダン 階段を上る際、踊場を介し
階段 各部 名称のギャラリー
各画像をクリックすると、ダウンロードまたは拡大表示できます
![]() Reco Blog 階段 の名称は 知って得するインテリアの部分名称 | ![]() Reco Blog 階段 の名称は 知って得するインテリアの部分名称 | ![]() Reco Blog 階段 の名称は 知って得するインテリアの部分名称 |
![]() Reco Blog 階段 の名称は 知って得するインテリアの部分名称 | ![]() Reco Blog 階段 の名称は 知って得するインテリアの部分名称 | ![]() Reco Blog 階段 の名称は 知って得するインテリアの部分名称 |
Reco Blog 階段 の名称は 知って得するインテリアの部分名称 | ![]() Reco Blog 階段 の名称は 知って得するインテリアの部分名称 | ![]() Reco Blog 階段 の名称は 知って得するインテリアの部分名称 |
![]() Reco Blog 階段 の名称は 知って得するインテリアの部分名称 | ![]() Reco Blog 階段 の名称は 知って得するインテリアの部分名称 | Reco Blog 階段 の名称は 知って得するインテリアの部分名称 |
![]() Reco Blog 階段 の名称は 知って得するインテリアの部分名称 | ![]() Reco Blog 階段 の名称は 知って得するインテリアの部分名称 | ![]() Reco Blog 階段 の名称は 知って得するインテリアの部分名称 |
![]() Reco Blog 階段 の名称は 知って得するインテリアの部分名称 | ![]() Reco Blog 階段 の名称は 知って得するインテリアの部分名称 | Reco Blog 階段 の名称は 知って得するインテリアの部分名称 |
![]() Reco Blog 階段 の名称は 知って得するインテリアの部分名称 | Reco Blog 階段 の名称は 知って得するインテリアの部分名称 | ![]() Reco Blog 階段 の名称は 知って得するインテリアの部分名称 |
![]() Reco Blog 階段 の名称は 知って得するインテリアの部分名称 | Reco Blog 階段 の名称は 知って得するインテリアの部分名称 | Reco Blog 階段 の名称は 知って得するインテリアの部分名称 |
![]() Reco Blog 階段 の名称は 知って得するインテリアの部分名称 | ![]() Reco Blog 階段 の名称は 知って得するインテリアの部分名称 | ![]() Reco Blog 階段 の名称は 知って得するインテリアの部分名称 |
![]() Reco Blog 階段 の名称は 知って得するインテリアの部分名称 | Reco Blog 階段 の名称は 知って得するインテリアの部分名称 | ![]() Reco Blog 階段 の名称は 知って得するインテリアの部分名称 |
![]() Reco Blog 階段 の名称は 知って得するインテリアの部分名称 | Reco Blog 階段 の名称は 知って得するインテリアの部分名称 | ![]() Reco Blog 階段 の名称は 知って得するインテリアの部分名称 |
![]() Reco Blog 階段 の名称は 知って得するインテリアの部分名称 | ![]() Reco Blog 階段 の名称は 知って得するインテリアの部分名称 | Reco Blog 階段 の名称は 知って得するインテリアの部分名称 |
![]() Reco Blog 階段 の名称は 知って得するインテリアの部分名称 | Reco Blog 階段 の名称は 知って得するインテリアの部分名称 | ![]() Reco Blog 階段 の名称は 知って得するインテリアの部分名称 |
![]() Reco Blog 階段 の名称は 知って得するインテリアの部分名称 | ![]() Reco Blog 階段 の名称は 知って得するインテリアの部分名称 | Reco Blog 階段 の名称は 知って得するインテリアの部分名称 |
![]() Reco Blog 階段 の名称は 知って得するインテリアの部分名称 | ![]() Reco Blog 階段 の名称は 知って得するインテリアの部分名称 | ![]() Reco Blog 階段 の名称は 知って得するインテリアの部分名称 |
![]() Reco Blog 階段 の名称は 知って得するインテリアの部分名称 | ![]() Reco Blog 階段 の名称は 知って得するインテリアの部分名称 | ![]() Reco Blog 階段 の名称は 知って得するインテリアの部分名称 |
![]() Reco Blog 階段 の名称は 知って得するインテリアの部分名称 | Reco Blog 階段 の名称は 知って得するインテリアの部分名称 | Reco Blog 階段 の名称は 知って得するインテリアの部分名称 |
![]() Reco Blog 階段 の名称は 知って得するインテリアの部分名称 | ![]() Reco Blog 階段 の名称は 知って得するインテリアの部分名称 | ![]() Reco Blog 階段 の名称は 知って得するインテリアの部分名称 |
![]() Reco Blog 階段 の名称は 知って得するインテリアの部分名称 | ![]() Reco Blog 階段 の名称は 知って得するインテリアの部分名称 | ![]() Reco Blog 階段 の名称は 知って得するインテリアの部分名称 |
Reco Blog 階段 の名称は 知って得するインテリアの部分名称 | ![]() Reco Blog 階段 の名称は 知って得するインテリアの部分名称 | Reco Blog 階段 の名称は 知って得するインテリアの部分名称 |
![]() Reco Blog 階段 の名称は 知って得するインテリアの部分名称 | ![]() Reco Blog 階段 の名称は 知って得するインテリアの部分名称 | Reco Blog 階段 の名称は 知って得するインテリアの部分名称 |
Reco Blog 階段 の名称は 知って得するインテリアの部分名称 | Reco Blog 階段 の名称は 知って得するインテリアの部分名称 | ![]() Reco Blog 階段 の名称は 知って得するインテリアの部分名称 |
![]() Reco Blog 階段 の名称は 知って得するインテリアの部分名称 | Reco Blog 階段 の名称は 知って得するインテリアの部分名称 | ![]() Reco Blog 階段 の名称は 知って得するインテリアの部分名称 |
![]() Reco Blog 階段 の名称は 知って得するインテリアの部分名称 | ![]() Reco Blog 階段 の名称は 知って得するインテリアの部分名称 | ![]() Reco Blog 階段 の名称は 知って得するインテリアの部分名称 |
Reco Blog 階段 の名称は 知って得するインテリアの部分名称 | ![]() Reco Blog 階段 の名称は 知って得するインテリアの部分名称 | ![]() Reco Blog 階段 の名称は 知って得するインテリアの部分名称 |
![]() Reco Blog 階段 の名称は 知って得するインテリアの部分名称 | Reco Blog 階段 の名称は 知って得するインテリアの部分名称 | Reco Blog 階段 の名称は 知って得するインテリアの部分名称 |
![]() Reco Blog 階段 の名称は 知って得するインテリアの部分名称 | ![]() Reco Blog 階段 の名称は 知って得するインテリアの部分名称 | Reco Blog 階段 の名称は 知って得するインテリアの部分名称 |
![]() Reco Blog 階段 の名称は 知って得するインテリアの部分名称 | ![]() Reco Blog 階段 の名称は 知って得するインテリアの部分名称 | ![]() Reco Blog 階段 の名称は 知って得するインテリアの部分名称 |
![]() Reco Blog 階段 の名称は 知って得するインテリアの部分名称 | Reco Blog 階段 の名称は 知って得するインテリアの部分名称 | ![]() Reco Blog 階段 の名称は 知って得するインテリアの部分名称 |
Reco Blog 階段 の名称は 知って得するインテリアの部分名称 | ![]() Reco Blog 階段 の名称は 知って得するインテリアの部分名称 | Reco Blog 階段 の名称は 知って得するインテリアの部分名称 |
![]() Reco Blog 階段 の名称は 知って得するインテリアの部分名称 | ![]() Reco Blog 階段 の名称は 知って得するインテリアの部分名称 | ![]() Reco Blog 階段 の名称は 知って得するインテリアの部分名称 |
Reco Blog 階段 の名称は 知って得するインテリアの部分名称 | ![]() Reco Blog 階段 の名称は 知って得するインテリアの部分名称 | ![]() Reco Blog 階段 の名称は 知って得するインテリアの部分名称 |
![]() Reco Blog 階段 の名称は 知って得するインテリアの部分名称 | ![]() Reco Blog 階段 の名称は 知って得するインテリアの部分名称 | ![]() Reco Blog 階段 の名称は 知って得するインテリアの部分名称 |
![]() Reco Blog 階段 の名称は 知って得するインテリアの部分名称 | ![]() Reco Blog 階段 の名称は 知って得するインテリアの部分名称 | ![]() Reco Blog 階段 の名称は 知って得するインテリアの部分名称 |
Reco Blog 階段 の名称は 知って得するインテリアの部分名称 | ![]() Reco Blog 階段 の名称は 知って得するインテリアの部分名称 |
階段にもそれぞれの部材に名前があります。今回は、直階段の各部名称を動画でまとめました。*** time table ***00 踏板(ふみいた)/段板階段 名称 各部 階段の途中のフラットなスペース。階段の折り返し部分や、長い階段の途中に設ける。足休めや、最下までの転落を防ぐ役割がある。 折り返し階段 オリカエシカイダン 階段を上
Incoming Term: 階段 各部 名称,









































































コメント
コメントを投稿